【來去看看~】Citylife住宅社區/札哈.哈蒂建築師事務所

Citylife住宅社區/札哈.哈蒂建築師事務所
2016年4月8日
建築師:札哈.哈蒂建築師事務所
地點:義大利 米蘭
項目:住宅
專案管理人:Gianluca Racana
專案主建築師:Maurizio Meossi
面積:38,000 平方公尺
專案年份:2013
攝影:Simón Garcia
建築結構:Msc Associati, Milan (danilo campagna)
系統:Hilson Moran Italia
建築外層:Permasteelisa
內部大廳:Bazea
大理石地板:Bosisio
木地板:Antonini Legnani
花園:Peverell
客戶:Citylife spa
主要工程:Tre Torri Contractor/City Contractor
文字由建築師提供。

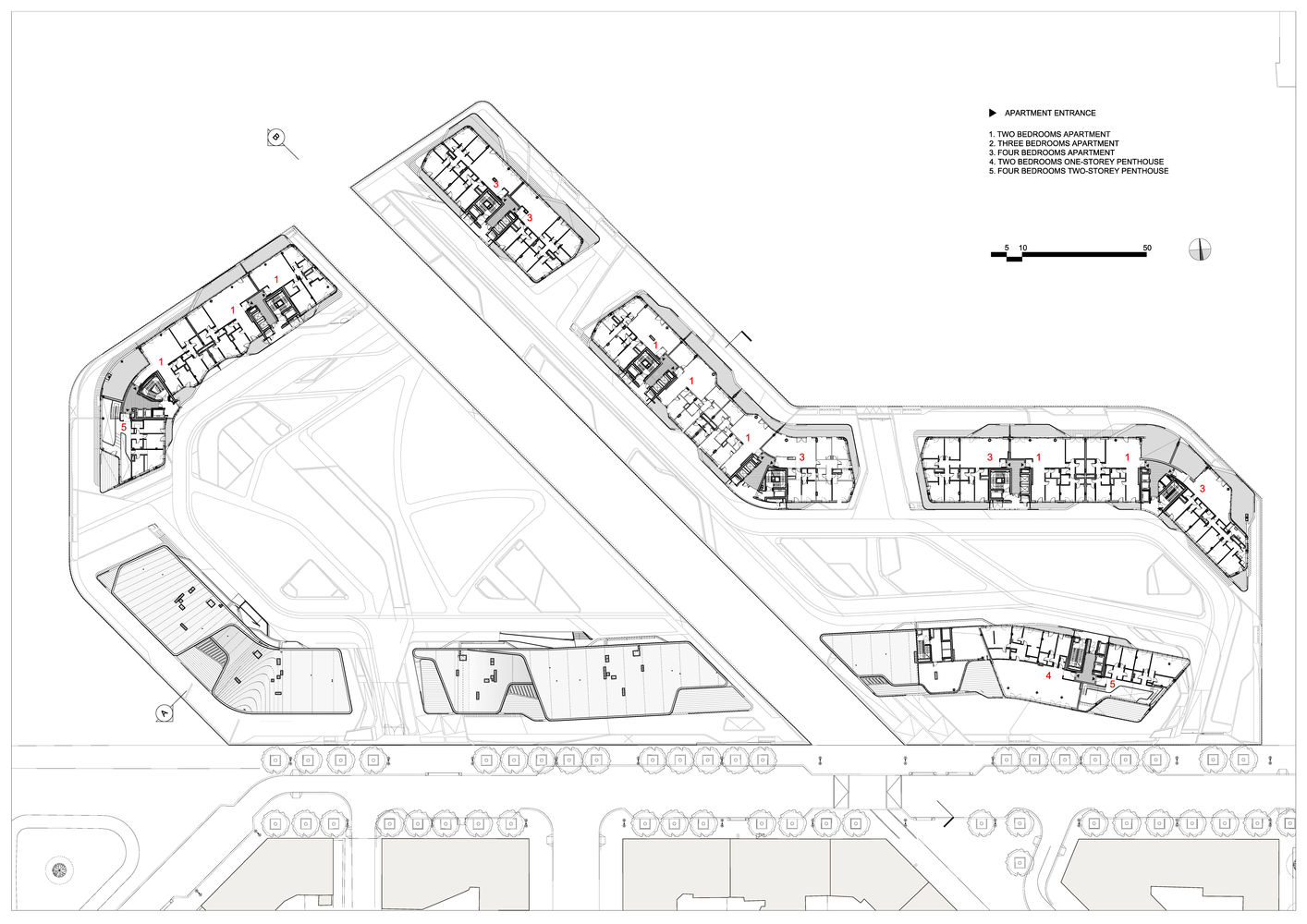
札哈.哈蒂用經典流暢波浪型線條設計出CityLifeMilano住宅社區的天際線。整個社區共有七棟波浪起伏的住宅大樓,每棟高度都不相同,從5層樓到13層都有。這個作品中還能看到建築師的其他代表性元素:如蛇般蜿蜒的陽台及屋頂輪廓線條,讓所有的頂樓公寓呈現出柔美優雅的外觀;頂樓還有寬敞的加蓋平臺。這個工程從2009年8月開始動工,第一批公寓計畫於2013年交屋。

大樓所在地及建築方位皆經過精心籌備設計,同時也考慮到四周環境與舒適度條件等,因此大部分公寓都是朝東南方,並讓住戶能從平台欣賞到最美的景色,像是市景或公園。



外牆的素材(纖維混凝土與天然木板)強調出大樓的容積動線,並讓內部中庭能保有隱私與居家感。大樓內部可直接通往寬敞的平台。所有的公寓的結構與植被形式皆能輕易依照住戶需求調整。每個住家的尺寸大小、透光及格局都不同:從兩房套房、大型家庭住宅到雙層頂樓公寓都有。

一樓的挑高大廳因有來自大型落地開口的光源而顯得光線充足,此設計也是要延續公園的視覺效果。住戶可以從主要電梯與送貨電梯到達所有樓梯井,亦可從地下停車場方便安全地直接上樓到自己住的那棟大樓。

看所有圖庫:
專案地點:(地點僅供參考:標示處可顯示所在國家/城市,但並非確實地址。)





















文字與圖片說明文字與圖片說明文字與圖片說明文字與圖片說明文字與圖片說明文字與圖片說明文字與圖片說明文字與圖片說明文字與圖片說明文字與圖片說明文字與圖片說明文字與圖片說明文字與圖片說明文字與圖片說明文字與圖片說明文字與圖片說明文字與圖片說明文字與圖片說明文字與圖片說明文字與圖片說明文字與圖片說明文字與圖片說明文字與圖片說明文字與圖片說明文字與圖片說明文字與圖片說明文字與圖片說明文字與圖片說明文字與圖片說明