【來去看看~】壽縣文化藝術中心/朱錇建築事務所

- 策劃人:韩爽
- 2020年年2月26日
文化中心・中國壽縣
- 設計公司:朱錇建築事務所
- 面積:30010.0 平方公尺
- 年份:2019
- 攝影師:Shengliang Su
- 廠商:安徽華城混凝土有限公司、山東金象鋁業有限公司、無錫耀皮玻璃工程有限公司
- 主持設計師:朱錇
- 設計團隊:由昌臣、Shuhei Nakamura、劉伶、吳志剛、楊晶晨、杜揚、柯軍、丁新月、吳禎和、杜瑤
- 主承包商:聖沃建设工程有限公司
- 結構及MEP:BIAD JAMA CO., LTD.
- 景觀及內部設計:朱錇建築事務所、中國美術學院風景建築設計研究院
- 客戶:壽縣人民政府
本文由建築事務所提供。壽縣位於安徽省中心,淮河南岸。歷史上,曾是楚文化的故鄉,也曾是淮南王劉安撰寫中國哲學史和詩歌之處。壽縣老城區形狀略為正方形,四周有夯土牆包圍,牆外砌磚。整面牆向內傾斜,讓底部的石材層能穩固。護城河位在城市的東南邊,北有肥水,西有壽西湖,遠處可以看到八公山。走過古橋,就能漫步於老城區中,或是去探索古代遺跡,就能得到無限的靈感。城牆城內混亂、鬆散及豐富的建築被緊緊包圍著,製造出環境驟然變換的體驗。


城內建築的類型是院落式的,不同於中國北方的住宅及安徽南部的徽州住宅。壽縣舊城的典型建築強烈反映出當地氣候特徵,以及當地文化和生活方式。沿著窄街道,垂直院落住宅都有小窗和實牆-典型防風雨特色,以抵禦冬天的寒冷和夏天的炎熱。

壽縣文化藝術中心建在古城的一兩公里外的新城,這裡過去曾是空曠且平坦的農田,缺少景點特色。這個區域中蓋滿許多索然無味的高樓,而這些建築並無法反映當地氣候和文化。這個工程位在無趣的地方,對於朱錇來說,就像是一張白紙,讓他能夠恣意創作,而壽縣人民政府非常開明,他們並沒有提出設計要求,但只要求這項工程「必須要快,明年完工。」

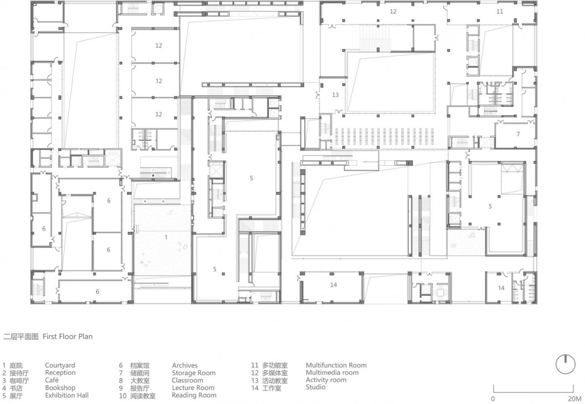
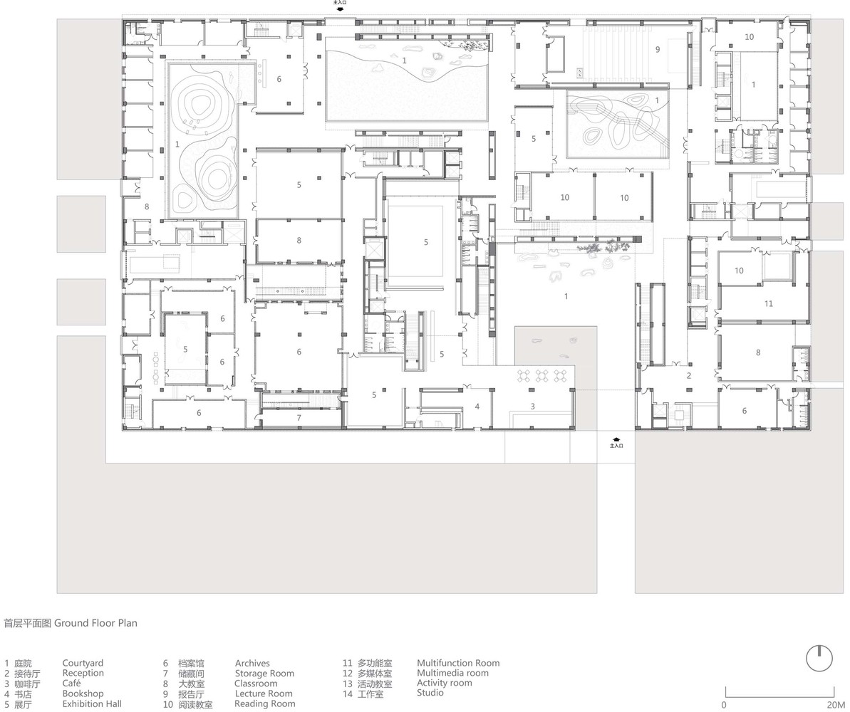
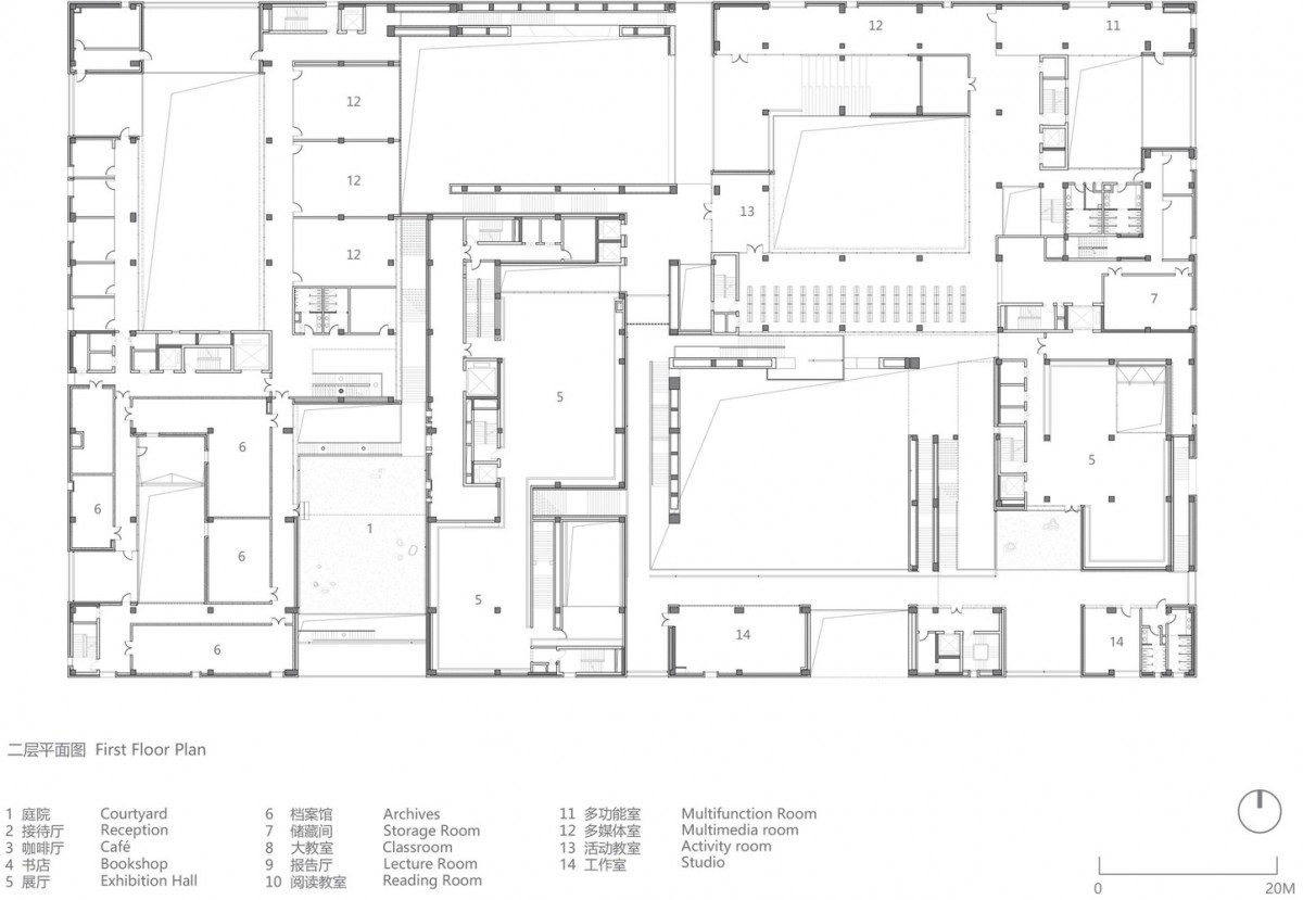
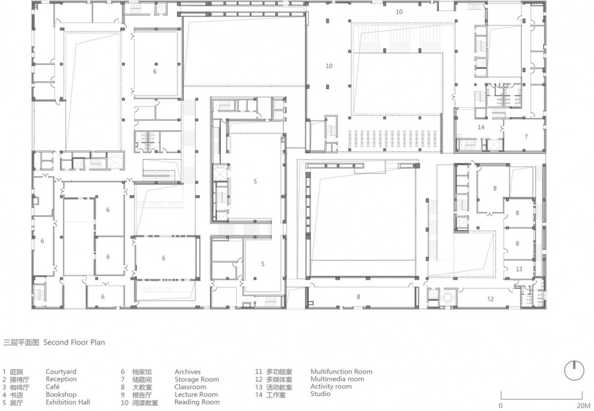
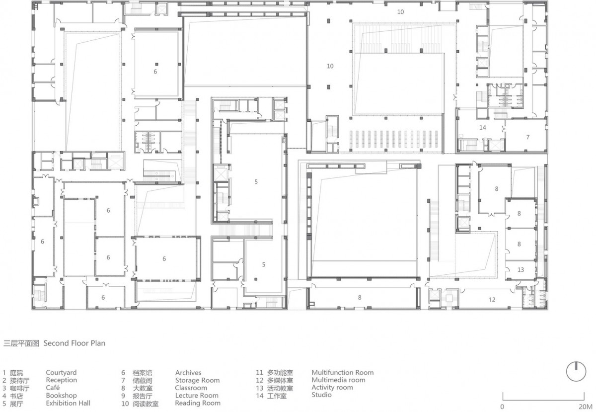
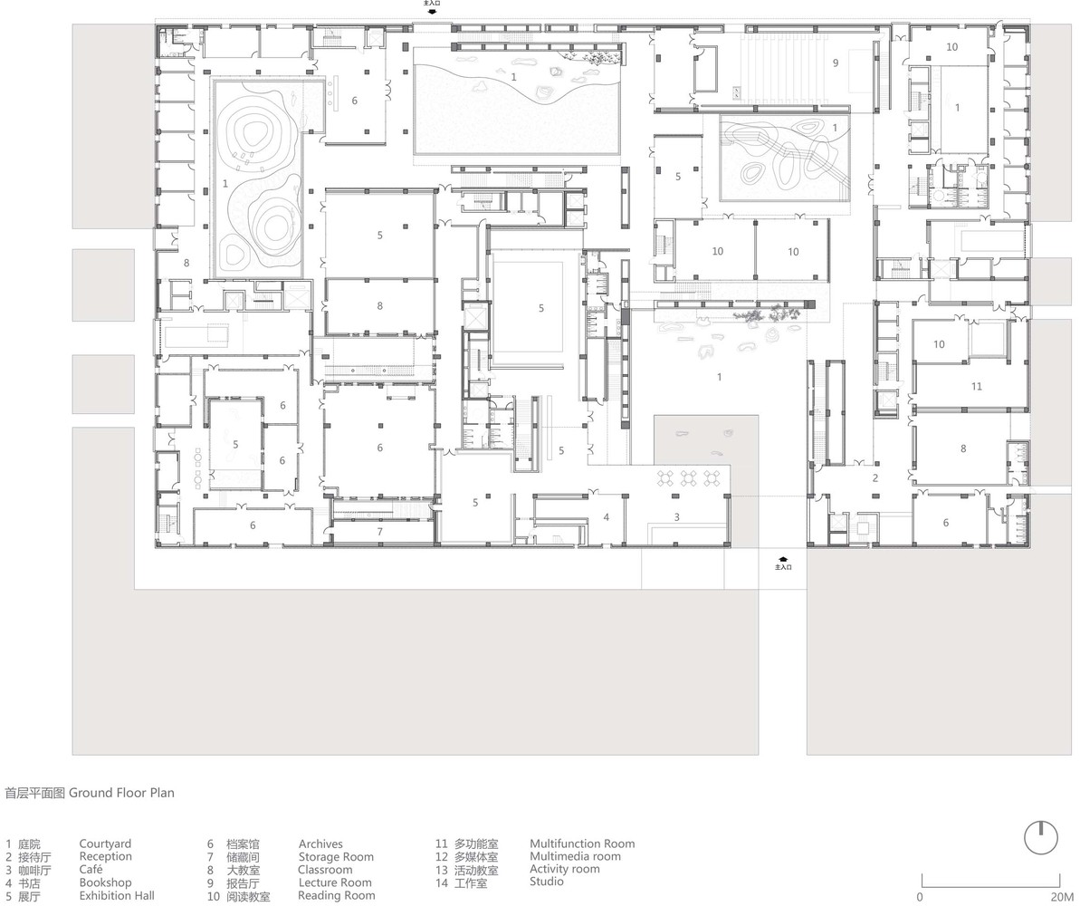
該文化藝術中心包含藝廊、文化中心、圖書館及檔案館。文化及藝術中心在中國並不是新概念,在1950年代及1970年代間前蘇聯時代,就建造了許多的藝文中心,現今,它被賦予了很多新的可能性,包含建立市民文化活動的公共空間。壽縣文化藝術中心的設計,是想吸引人們來此探索並體驗,而非像是個漂亮的雕塑,人們只能觀看而不能體驗。

朱錇調查了壽縣的文化的根源,觀察了老住宅和廢墟,並了解先人們在沒有現代科技的幫助下,如何在自然的原始力量與主動建築之間尋求平衡,而老城區的建築給了建築師很多啟發。垂直庭院房屋的向內居住模式,以及四通八達的窄巷將家家戶戶彼此連接,這些特徵反映了當地的生活方式,也暗示了為了適應當地氣候狀況的建造法則。朱錇重新塑造這樣的生活及空間體驗,讓壽縣的文化藝術中心深植於當地地區之中。

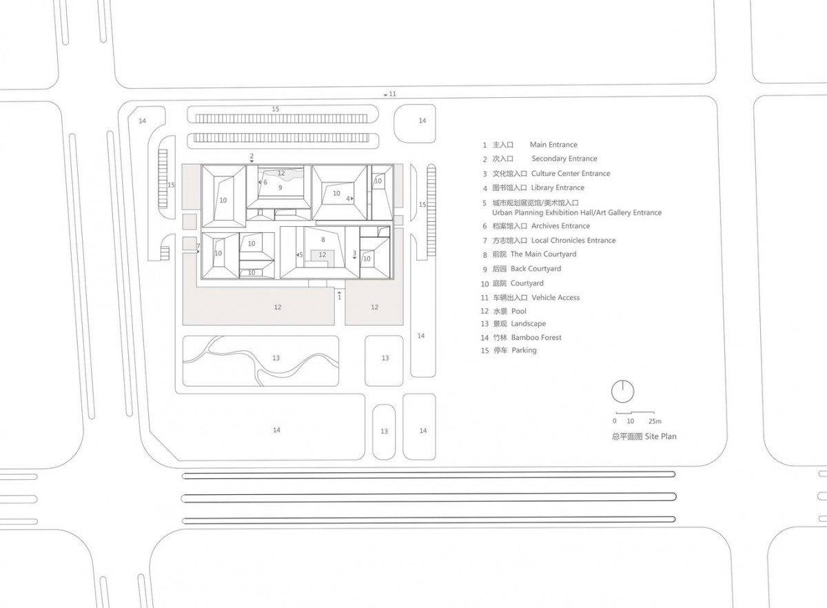
多個不同大小的庭院座落在相對封閉的矩形塊中,這些庭院由一條蜿蜒起伏的公共廊道串連起來,這個廊道是不會受到晴天和雨天影響。這條公共廊道會引導人們走過小橋,越過護城河進入建築裡面。建築主入口處的前院形成一個公共廣場,意味著壽縣民房的「堂屋」(中堂),而建築的後院代表著一般民房的後花園。從前院開始,在不打斷連續性的前提下,人們可以穿梭瀏覽整個建築的內院。沿著這個可遮陽避雨的公共廊道,人們時而在一樓,時而又到了二、三樓。這個空間是變幻莫測,光影不停轉換下,讓人們時常發現驚喜,並感受到「藏、息、修、遊」的傳統中式建築的藝術精神。

文化藝術中心的內向型概念是對周邊地區未來變幻莫測發展的明智決定,同時也反映了壽縣古城歷經時代變遷仍保有優雅、兼容並蓄以及生命力。

照片集錦
文章來源:壽縣文化藝術中心/朱錇建築事務所









































文字與圖片說明文字與圖片說明文字與圖片說明文字與圖片說明文字與圖片說明文字與圖片說明文字與圖片說明文字與圖片說明文字與圖片說明文字與圖片說明文字與圖片說明文字與圖片說明文字與圖片說明文字與圖片說明文字與圖片說明文字與圖片說明文字與圖片說明文字與圖片說明文字與圖片說明文字與圖片說明文字與圖片說明文字與圖片說明文字與圖片說明文字與圖片說明文字與圖片說明文字與圖片說明文字與圖片說明文字與圖片說明文字與圖片說明