【來去看看~】七舍合院/建築營設計工作室

策劃人 韓爽 

 

舊屋改造中國北京 

  • 建築師:建築營設計工作室 
  • 面積:500.0平方公尺 
  • 年份:2020 
  • 攝影師:Qingshan Wu, Ning Wang 
  • Manufacturers: Toto洪雅竹元科技 
  • 首席設計師:Wenqiang Han 
  • 專案設計師:Tonghui Wang 
  • 結構顧問:Yong Zhang, BAMBOO ERA 
  • 機電顧問:Baowei Zheng, Yan Yu, Dongjie Li 
  • 照明顧問:Tianhua Dong 
  • 植栽顧問:Xiaoguang Zhang 
  • 影像編輯:Tonghui Wang, Chenhan Wen 
  • 建設團隊:Weixing Cheng, BAMBOO ERA 
  • 影片攝影師:Ning Wang 

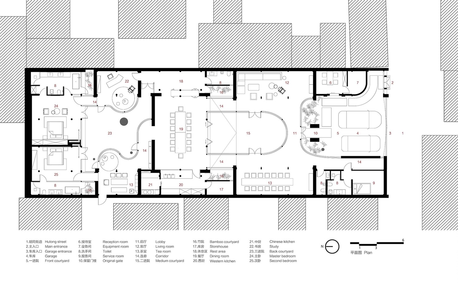
本文由設計工作室所提供。這個舊屋翻新專案位於北京舊城核心區內,七舍合院一個小型的四合院(一種傳統中式住宅,有三個庭院,總長和寬分別為1542公尺。由於七舍四合院共包含七間斜屋頂房屋,加上正好是該胡同的七號,因而得名為「七舍」(「七」和「舍」分別代表中文的「七」以及「房子」)。在翻新前,四合院非常破舊殘破不堪,除了最基本的木結構樑柱和局部有民國時期特色的拱形門保存得相當完好之外,其他大部分的屋頂、牆面、門窗則是嚴重破損或消失。在三個庭院內,有許多幾年前的臨時建築,同時也可以看到屋內遍佈拆除之後的建築廢料,雜草叢生,一片凋零。 

 

在接手這個專案時,建築營設計公司設定了兩個目標:翻新舊房並加入新元素。一方面,設計師對四合院進行整理、修復房子的外觀、加強建築結構,以重現傳統四合院建築樣貌另一方面,他們加入了新的生活設施,像是浴室、廚房及車庫、HVAC管線、以及新的遊廊空間。新舊交織呈現出一個全新且更好的空間,來滿足未來院子作為公共接待和居住空間使用需求 

設計公司將遊廊-中國傳統建築的基本元素-嵌入到就四合院中,將原本分開的七間房屋連結成一個整體。遊廊可以作為路徑通道,重新劃分庭院層次,並創造出有趣的步行體驗和絕妙的景色。 

前院主要功能為車庫。建築營設計工作室保留斜屋頂,拆除了前牆和後牆,並將主出入口移到側面,進而留出更多的停車空間。設計團隊恢復並保存了許多有歷史價值的元素,例如拱門的入口和雕刻,甚至是枯樹。此外,設計師拆除了前院和中院之間的圍牆,以透明的遊廊取而代之。 

遊廊的特色是彎曲的平面,並且根據不同的景色以及空間特色呈現出不同的樣貌,它與曲線屋頂緊密結合,從而形成了幾個弧形的透明空間,將房屋、景觀以及天空納入風景之中。在前院,一部分的遊廊屋頂向下連結成為曲面牆,在牆的後面有一些功能性空間,包括衛浴間、服務間以及設備間等。 

 

在庭院的中間是公共活動空間,原先這個空間有三個房間,一個在北邊,兩個在兩側,根據原本的設計,設計公司在這個區域設計了客廳、茶水間、飯廳以及廚房等。設計師採用對稱式佈局,繼承了傳統庭院建築的形式感。此外,它們可以取代了先前的樓梯,讓房間的樓梯平緩傾斜。斜坡和透明遊廊共同增加了室內空間與開放式庭院之間的連通性。飯廳有一扇折疊門,此們可以將內部空間與戶外空間結合,也可以將室內活動擴展到庭院。在飯廳的後牆中間有一扇拱門,經過修復後成為後院的入口。 

後院是個住宅空間,主要包含兩間臥室、茶水間以及書房。該原始的空間佈局與中間庭院相同,該區域的曲線遊廊一方面與院子中的三棵老樹產生互動,另一方面營造出許多小弧形的休閒空間。臥室的位置是設定在房屋的最後方,根據屋脊呈現對稱的佈局。每間臥室內的浴室都與小院子相比鄰,這樣才能確保有良好的採光與通風效果。

這項工程的材料規劃將新舊建材完美結合,建築營設計工作室的設計保留了傳統建築材料的特色適當的方式融入新元素,並且同時保留了時間的印記讓設計呈現出新與舊之間的對比和融合。設計師保留了原始四合院的松木框架,用相同的建材替換掉損壞的組件。新的遊廊、門窗及部分傢俱採用層壓竹板(一種看起來像是木材,但摸起來像鋼材的材料),如此一來就能與舊的松木相呼應。新遊廊的框架結構中的天花板是採用螺紋橫梁和鑲板,使其透明度和亮度提升到最大的程度,並更好地融入到舊建築中。在室內設計方面,建築營設計工作室帶進新舊木材家具的各種組合,讓不同色澤和木質完美地融合。 

傳統屋頂缺少了現代防水材料,隔熱性能也比較差,因此設計團隊在改造時,保留原本的灰瓦屋頂,優化屋頂系統與性能。而新建遊廊的弧形屋頂,設計師使用聚合物灰漿來拋光,此材料平滑且正好與相鄰的屋瓦紋理相呼應。設計團隊透過再利用的方式,將庭院中臨時拆除的灰色磚塊用來修復舊建物的牆面。而戶外空間的地板也沿用了相同類型的地磚,以確保視覺的一致性。部分新牆面採用了透光的玻璃磚,但尺寸仍與舊建築的灰磚一致。在施工的過程中,意外發現的石片瓦罐以及磨盤等,也在完工後,將其作為台階、花盆以及裝飾品修復過程中的廢棄木樑,則被改造為椅子,賦予這些舊材料有新的生命。 

文章來源:七舍合院/建築營設計工作室

本篇文章部分所分享之圖片、影片、文章或資料內容是引用自網路或轉寄分享。其著作權皆屬原作者所有,且儘量能註明出處與原作者,惟有時轉寄多次,可能原作已不復查證,故未及時註明,尚請原諒。如未予註明作者,或原著作者與分享者不同意轉貼,請立即告知,將立刻處理。
獲得更多生活樂趣與資訊【加入岱嵐LINE@】