【來去看看~】重慶鍾書閣/ X+Living
重慶鍾書閣/ X+Living

- 策劃人: 韩爽
- 2019/04/04

本文由設計公司提供。重慶市是世界上最大的內陸山水城市之一,充滿著許多驚奇、奇妙及有魅力的街角。自古以來,它的地貌以及許多歷史遺跡吸引了許多古代作家和書法家來此。直到今天,重慶市仍是個具有吸引力的城市。

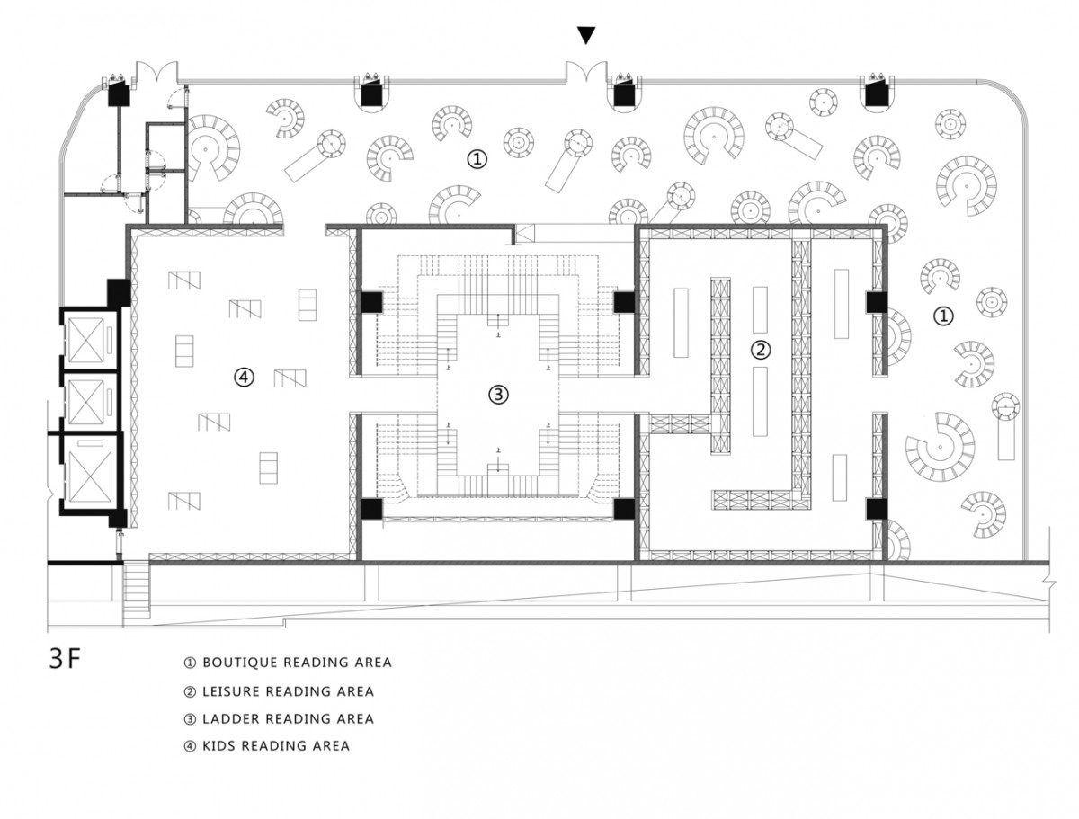
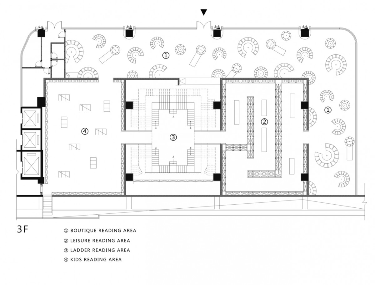
位處在楊家坪商圈的重慶中迪廣場的三樓及四樓,鍾書閣用文字玻璃幕牆迎接訪客前來,進到書店,整個深咖色的大廳中佈滿許多「燈罩書架」,書架內部投射出暖洋洋的燈光,當訪客在書架前閱讀時,彷彿置身於明亮且溫暖的私人閱讀空間。

燈罩大廳的一端,是個安靜的閱讀走廊,書櫃沿著走廊往下延伸,書架反射在地面上。有如隧道般的走廊,吸引訪客走進書店更內部的空間,追尋更多的知識。大廳的另一端是兒童閱讀室,而內部的書架充滿繽紛的顏色,並將重慶的景觀、建築及交通融入其中,讓孩童在閱讀中也能沈浸在迷人的重慶之中。


穿過走廊及兒童閱讀室,往前走是主閱讀廳-「梯廳」,階梯被當作書架,讓書架及鏡面天花板看起來更為驚人。訪客能在書架的樓梯上稍作休息,讓自己沈浸在書海和思考中。

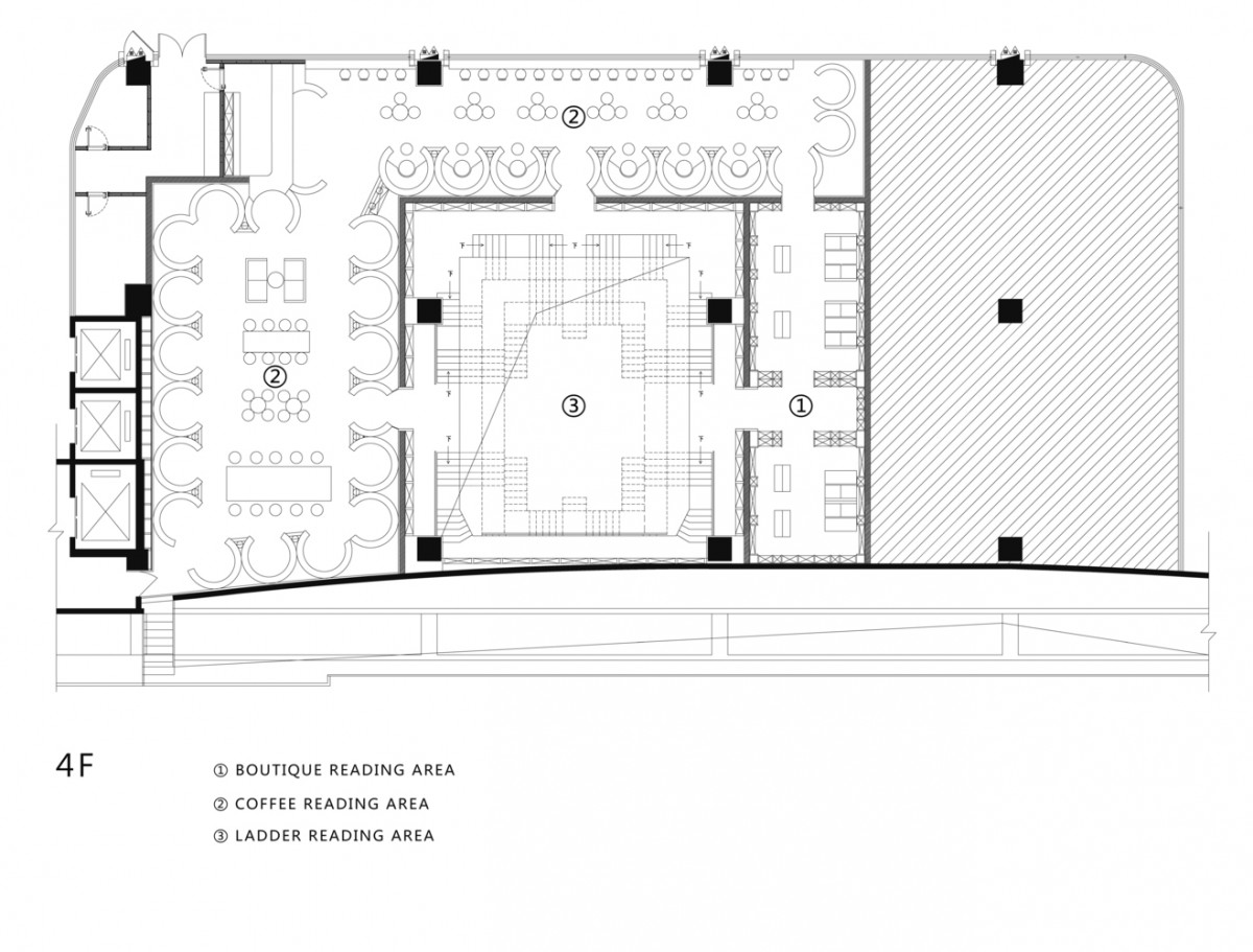
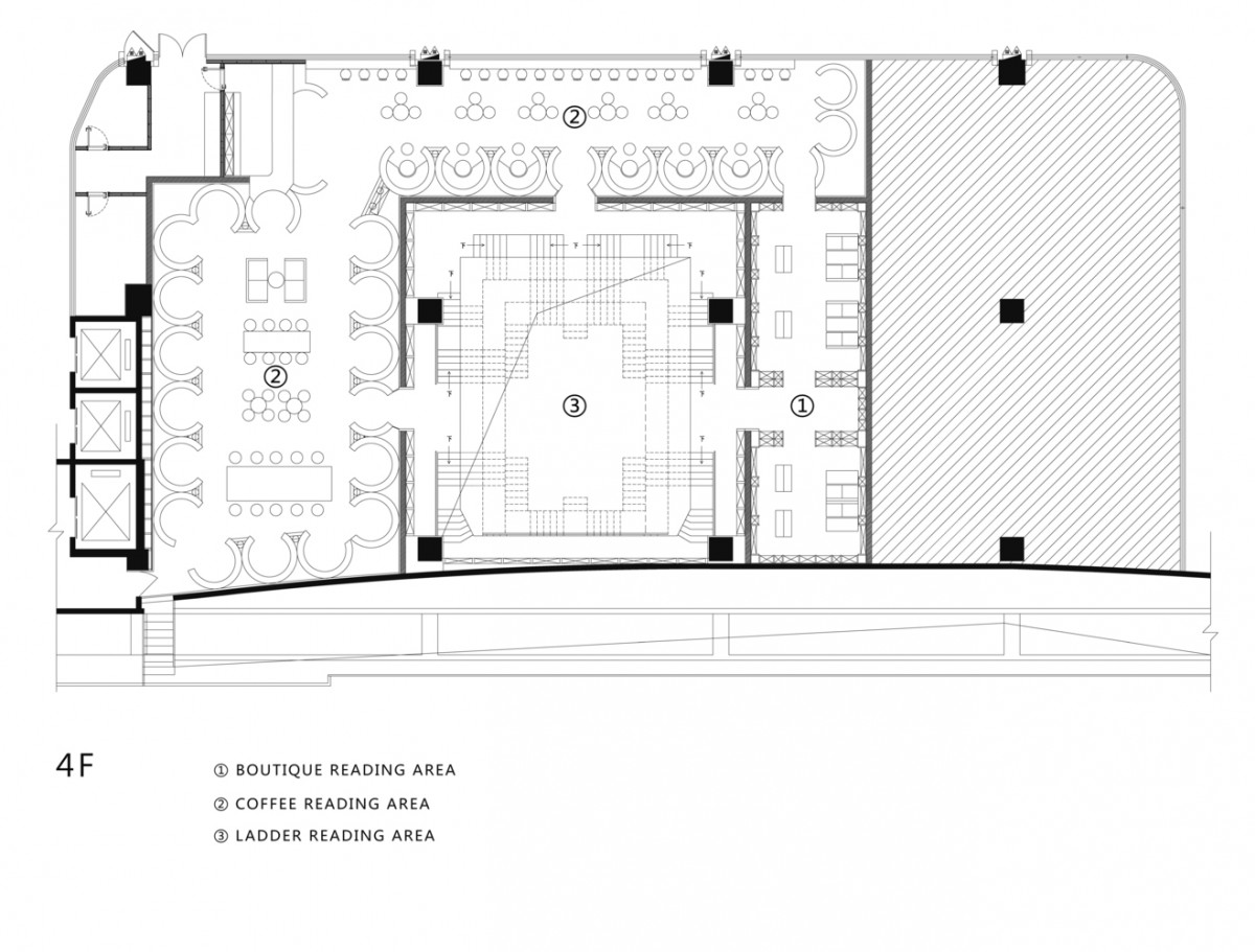
從梯廳走到四樓就是休閒區,訪客可以在這裡享受咖啡的香氣或一杯好茶,並透過不同的書籍,將自己沈浸在寧靜的世界。咖啡廳四周利用「燈罩書架」打造成一個個的隔間,人們可以在此與朋友相聚,一起閱讀或享受他們的休閒時光。與休閒空間連結的是寬敞的閱覽室,閱讀室內陳列許多很棒的作品,人們可以在這邊拓展視野並豐富心靈世界。



鍾書閣是個閱讀、了解生活及結識他人的好地方,書店希望來書店的人,不僅能閱讀到新書及好書,也可以在這邊結識具有相同興趣的朋友。

照片錦集
鍾書閣位置
地址:中國重慶市楊家坪商圈中迪廣場3-4樓
文章來源:重慶鍾書閣/ X+Living

















文字與圖片說明文字與圖片說明文字與圖片說明文字與圖片說明文字與圖片說明文字與圖片說明文字與圖片說明文字與圖片說明文字與圖片說明文字與圖片說明文字與圖片說明文字與圖片說明文字與圖片說明文字與圖片說明文字與圖片說明文字與圖片說明文字與圖片說明文字與圖片說明文字與圖片說明文字與圖片說明文字與圖片說明文字與圖片說明文字與圖片說明文字與圖片說明文字與圖片說明文字與圖片說明文字與圖片說明文字與圖片說明文字與圖片說明