【來去看看~】木絲帶公寓/以色列設計工作室Toledano+Architects

- 策劃人:Paula Pintos
- 2020/02/20
巴黎, 法國
- 設計公司:Toledano+Architects
- 面積:130.0 平方公尺
- 年份:2019
- 攝影師:Salem Mostefaoui
- 廠商:Ariostea, Flos, Hager, Inbani, OLIVARI, Sfel, Autodesk, Hawa
- 首席設計師:Gabrielle Toledano
- 工程師:Marc Malinowsky

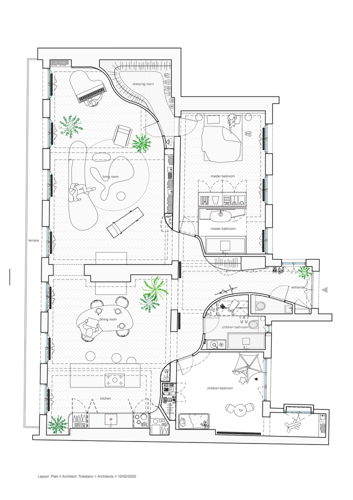
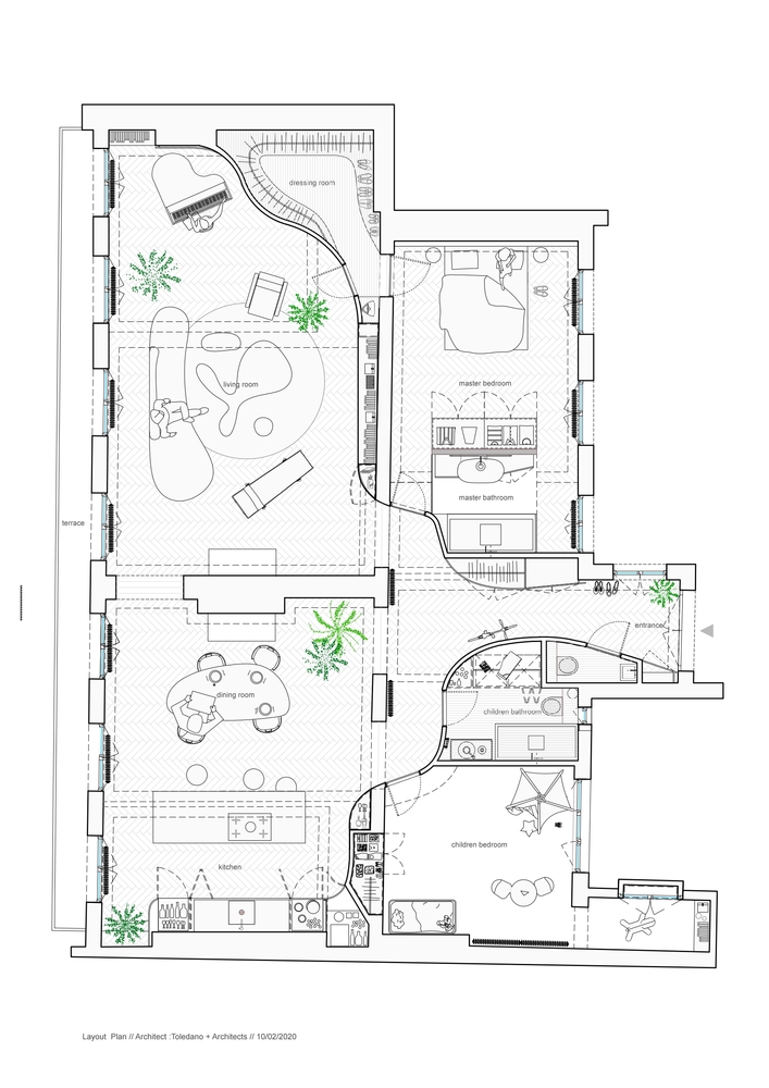
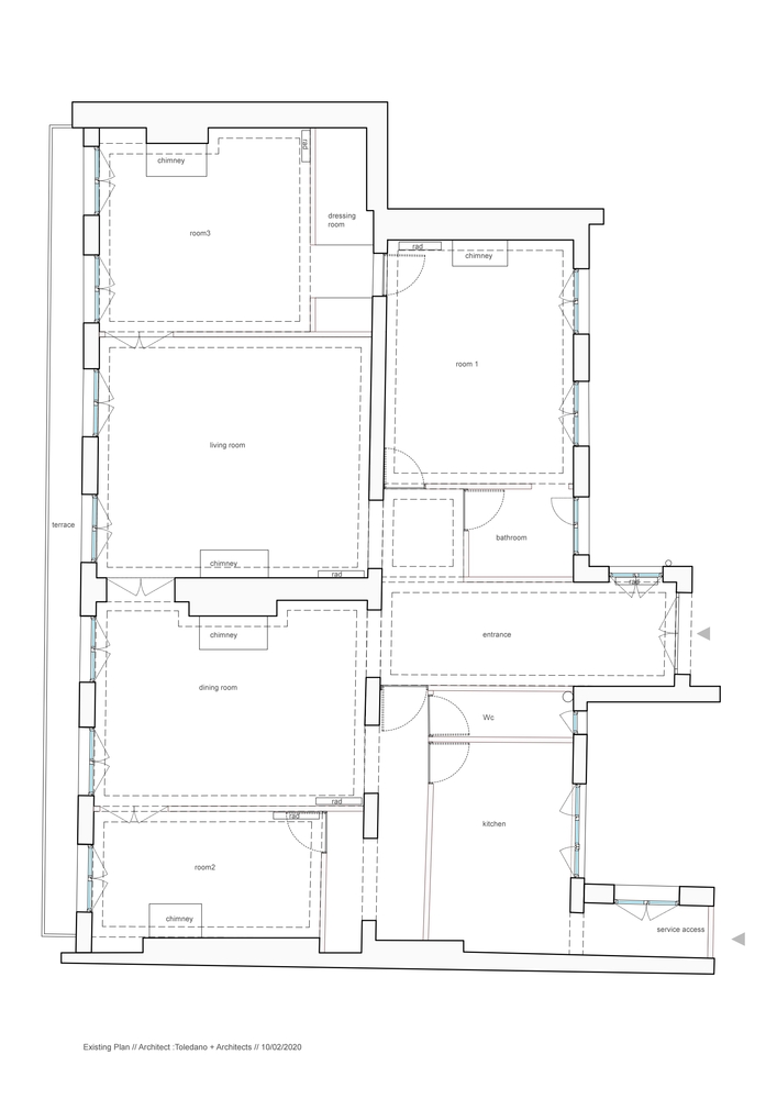
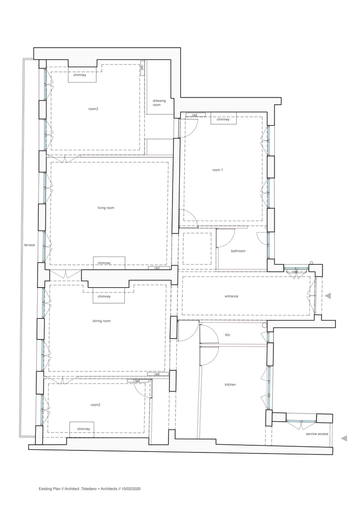
本文由設計公司提供。這間公寓是典型的巴黎奧斯曼區風格的公寓,有裝飾板條、魚骨鑲木地板以及線形長陽台。整間公寓原本概念是使用現代感的建材,並使用輕元素以保留全部現有的歷史素材,讓整個空間的特色更為突出,同時也能具有很強的現代感。這是一項挑戰。而整間公寓所呈現的是絲帶狀的木牆穿梭軸承打造的牆。沿著牆壁曲線,木材打造出宜居的牆壁/雕塑,就像是一個裝置藝術,同時將房間和浴室的通道隱藏起來,而木牆也能用來儲藏或存放廚房用品等等的空間。



木絲帶牆的高度比天花板在低一些,以保留更早之前室內規劃的痕跡。從使用雷射切割的內部軌道,到使用模具製造的波浪形表面,全部的木牆都是我們和木匠一起打造的。所有的木牆都是在木匠的工作室製作並組裝,然後一天之內,在公寓內重新組裝完成,這挑戰性真的很大,也因為客戶是一對育有三個小寶寶的年輕夫妻,他們的預算很有限。

當我將原始隔牆的限制拿掉之後,整體的規劃變得非常清晰,我們決定拆除全部隔間,這樣不管新的隔間木牆是如何都會將天花板的飾條保留下來。木牆一的邊是主臥室,有臥室、開放衛浴以及更衣室,另一邊則是小孩區,有一個房間和一個浴室。絲帶的兩邊將公寓分成兩區,而中間的木牆空間,讓兩個區域各自獨立,卻也可以是開放空間。

狹窄的走廊將入口和寬敞的公共空間分開:起居室、廚房和餐廳。木絲帶牆所使用的材料是可彎曲木材,外牆是天然的木材,而牆內使用壁龕、黃銅和洞石。在主浴室中,用灰瑪瑙色木板打造年輕且放鬆的氛圍,相反的,在兒童區中則是使用白、橘樹脂等較明亮而有趣的元素打造而成。天花板使用的材料是齒槽狀聚氨酸板,可以提供自然光線,並將臥室除外的木牆後區域打造成一個有趣的螺旋狀空間。

照片錦集
公寓位置
地址:法國巴黎
































































文字與圖片說明文字與圖片說明文字與圖片說明文字與圖片說明文字與圖片說明文字與圖片說明文字與圖片說明文字與圖片說明文字與圖片說明文字與圖片說明文字與圖片說明文字與圖片說明文字與圖片說明文字與圖片說明文字與圖片說明文字與圖片說明文字與圖片說明文字與圖片說明文字與圖片說明文字與圖片說明文字與圖片說明文字與圖片說明文字與圖片說明文字與圖片說明文字與圖片說明文字與圖片說明文字與圖片說明文字與圖片說明文字與圖片說明