【來去看看~】誘惑:超大型摺紙作品/ FRESH 建築事務所
此超大型摺紙建案是由FRESH 建築事務所構造而成的。如以前衛現代風格建築師來說,坐落於巴黎Clichy-Batignolles生態區的建物是兩間建築公司Itar和Fresh(仲介)一同打造一個能互相轉換、共同居住使用又具多元性的標誌。

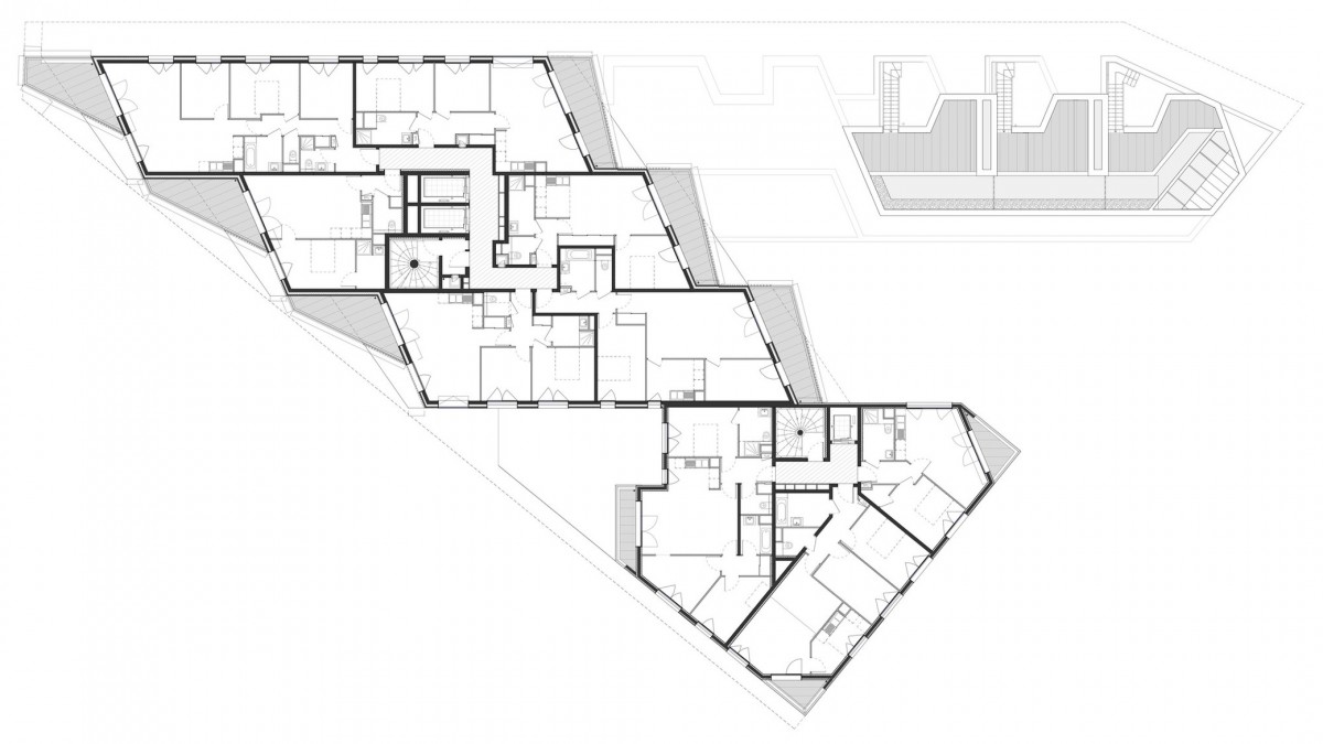
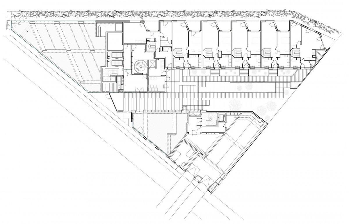
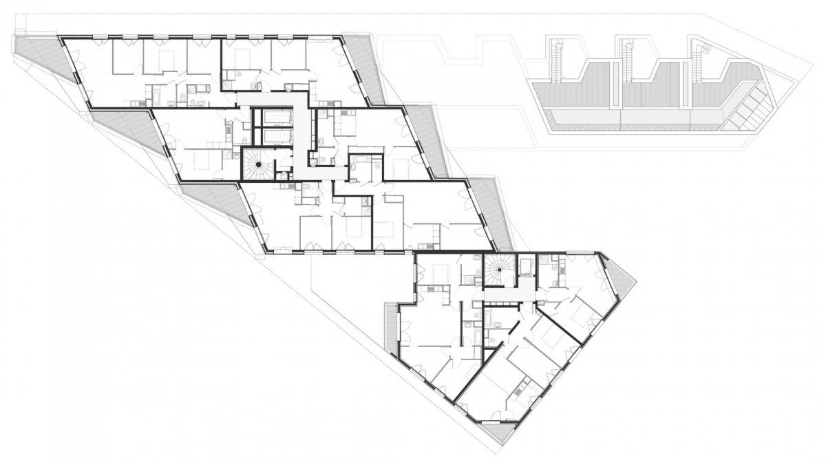
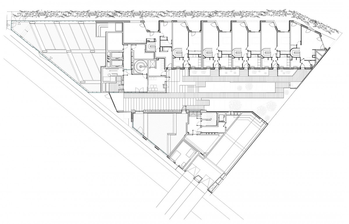
在Clichy-Batignolles社區中的O6B公寓內有如一個超大型的摺紙設計一般。這是由Fresh與Itar兩間建築事務所與官方承包商(Ogic 與 Demathieu Bard Immobilizer)共同創造產生對話模式的地產。兩間建築公司在這棟建物的任務則是創造出更多不同類型的住房空間。

買家與租客能以三種不同方面從121公寓建築系列中選擇想住的空間,其中包含三層樓高的城市住宅、七層樓高的建築,還有15層樓高的大廈。換句話說,這棟50公尺高的建物就如船桅一樣。在這棟建物每一處都可能看得到巴黎與其著名地標:馬丁路德金公園、北邊高等法院、西邊的拉德芳斯,還有南邊的艾菲爾鐵塔與東邊的蒙馬特爾山丘。

工程資訊:
建築商:FRESH建築事務所
地點:馬丁路德金公園: Rue Cardinet147號,法國巴黎,75017
工程主導方:FRESH建築事務所(仲介)、Itar建築事務所(合夥人)
面積:8500平方公尺
工程起始年分:2018
攝影:David Foessel
工程名稱:誘惑:超大型摺紙作品(ALLURE–XXL origami)
























文字與圖片說明文字與圖片說明文字與圖片說明文字與圖片說明文字與圖片說明文字與圖片說明文字與圖片說明文字與圖片說明文字與圖片說明文字與圖片說明文字與圖片說明文字與圖片說明文字與圖片說明文字與圖片說明文字與圖片說明文字與圖片說明文字與圖片說明文字與圖片說明文字與圖片說明文字與圖片說明文字與圖片說明文字與圖片說明文字與圖片說明文字與圖片說明文字與圖片說明文字與圖片說明文字與圖片說明文字與圖片說明文字與圖片說明